Casa de la Filipesti

150.000EUR
ID:108  Filipestii de Padure,  

Descriere casa vila

       În Filipești, acolo unde pădurea își lasă umbrele să danseze pe poteci, pe un drum de vis presărat cu lampioane care strălucesc blând de-o parte și de alta, descoperi o adevărată oază de liniște.
      O construcție impunătoare, dar primitoare, te întâmpină cu suflet curat ca aerul dimineților de munte. Este o locuință rezidențială de poveste, dar și o oportunitate unică pentru cei ce își doresc o sursă de venit aparte, imposibil de egalat.

      Camerele, numeroase și armonios așezate, se înmulțesc ca și gândurile frumoase, iar designul responsabil și atent conturat este completat de cele cinci balcoane construite strategic, de unde privirea se pierde fie către pădurea tăcută, fie către accesul facil din strada principală.

      Pivnița, vastă și tainică, adăpostește ecouri din alte vremuri: rafturi pline cu borcane și butoaie ude si parfumate, un parfum discret de must și murături, amintiri de familie păstrate între zidurile reci. Garajul mare îți stă la dispoziție, iar grădina, împărțită în parcele rodnice, îți oferă legumele proaspete ale ogrăzii. Vie roditoare și curtea vie, pictată în culori vii de flori și verdeață, transformă locul într-o lume în care liniștea și frumusețea devin o adevărată dependență.

      Aici, natura și omul se împletesc într-un tablou de poveste, iar fiecare colț al proprietății respiră armonie, tihnă și farmec autentic.

Utilități

Curent, apă, canalizare, fosă septică

Acces internet

Utilități disponibile în zonă


Finisaje

Stare bună

Ferestre PVC

Jaluzele verticale

Uși interioare și exterioare din lemn


Dotări

Spații utile: pivniță, spațiu de depozitare, anexe, dependințe

Bucătărie mobilată și utilată

Mobilat parțial

Curte și grădină amenajată


Această vilă este mai mult decât o casă – este o oază de liniște și natură, un loc unde tradiția se îmbină cu confortul, unde fiecare colț spune o poveste și unde viitorii proprietari pot crea amintiri la fel de vii precum cele din trecut.

Caracteristici casa vila

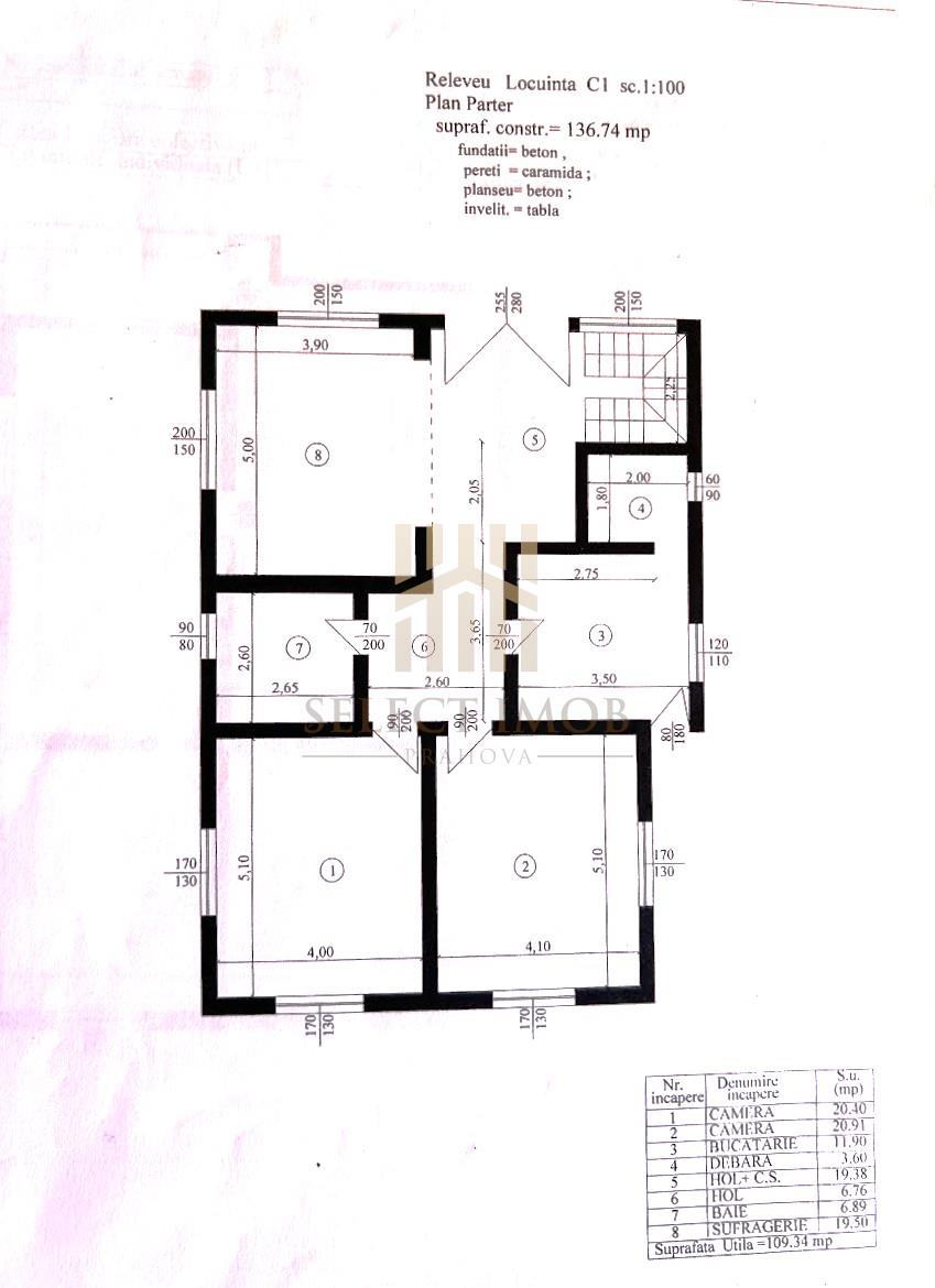
  • Numar Camere: 7
  • Zona:
  • Suprafata utila: 237.10 mp
  • Reper:
  • Strazi: Neamenajate
  • Numar Dormitoare: 6
  • Tip casa:
  • Numar Bai: 1
  • Regim Inaltime: 1
  • Numar Bucatarii: 1
  • An Constructie: 1998
  • Suprafata Teren: 4720.00 mp
  • Acces: Auto
  • Front: 15 ml / nr fronturi 2
  • Destinatie: Locuinta
  • Disponibilitate: Imediat

Caracteristici generale casa vila

  •  Acces auto:Acces auto
  •  Acces Casa:Auto
  •  Acoperis:Tabla
  •  Bucatarie:Mobilata Utilata
  •  Calorifere:Nu
  •  Contorizare:Contor electric
  •  Curte:Pavata Gradina Livada
  •  Destinatie:Locuinta
  •  Ferestre Casa:Term. PVC
  •  Geam baie:Da
  •  Materiale:Beton Armat
  •  Pereti:Faianta Lavabil
  •  Plansee:Beton Armat
  •  Podele:Parchet Gresie
  •  Stadiu Finisare:Finalizat
  •  Strazi:Neamenajate
  •  Teren imprejmuit:Teren imprejmuit
  •  Tip Curte:Individuala
  •  Usa intrare:Lemn
  •  Usi:Usi celulare
  •  Utilitati:Curent
  •  Zidarie:BCA

Harta

Tel: 0799091197 whatsapp